Wodeco Smart V Dips – Rack Bağlantılı Dip İstasyonu Eklentisi (60×60 mm Smart Uyumlu)
Wodeco Smart V Dips, Wodeco’nun 60×60 Smart Rack’leri ve diğer Smart ekipmanları ile uyumlu olarak tasarlanmış, sağlam ve tamamen ayarlanabilir bir dip istasyonu eklentisidir. Bu kompakt ancak güçlü ekipman, spor salonunuzda yerden tasarruf etmenizi sağlarken, etkili ve verimli bir dips antrenmanı yapmanıza olanak tanır. Ayrıca calisthenics ve fonksiyonel fitness odaklı sporcular için ideal bir çözümdür.
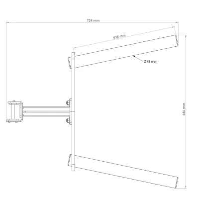
| Teknik Çizim (Değerler mm üzerindendir.) | Özellik | Değer / Detay |
|---|---|---|
![]() |
Uyumlu Sistem | Wodeco 60×60 Smart Rack ve diğer Smart İstasyonlar |
| Taşıma Kapasitesi (Maks.) | 300 kg | |
| Konforlu Kullanım Ağırlığı | Sabit Rack’ler için 180 kg / Sabit Olmayan Sistemler için 120 kg | |
| Profil Yapısı | 40 x 60 mm x 3 mm endüstriyel kalite çelik profil | |
| Tutacak Çapı / Açısı | 48 mm çap / V şeklinden | |
| Toplam Derinlik | 72.4 cm | |
| Toplam Genişlik | 64.6 cm | |
| Kol Uzunluğu | 43.5 cm | |
| Net Ağırlık | 10 kg |
Dips Egzersizlerinin Faydaları ve Hedef Kaslar
Dips hareketleri, göğüs, triceps ve omuz kaslarını hedef alarak üst vücut gelişimi için son derece etkili bir egzersizdir.
- Göğüs Kaslarını Geliştirir: Özellikle göğüs kaslarınızın gelişmesine yardımcı olur.
- Triceps Kaslarını Güçlendirir: Kol gücünüzü artırır.
- Omuz Kaslarını Güçlendirir: Üst vücut dayanıklılığını artırır.
- Kolların Dayanıklılığını Artırır: Uzun süreli antrenmanlarda daha fazla tekrar yapabilmenizi sağlar.
Kullanım Talimatları ve Neden Wodeco Smart V Dips
- Kullanım Talimatı: Zemine sabit olmayan sistemler için maksimum 120 kg, zemine monte edilen veya duvara bağlı rack’ler ile kullanımda ise 180 kg’a kadar güvenle kullanılabilir.
- Çok Yönlü Kavrama: V şeklindeki açılı tasarım sayesinde her el pozisyonuna ve farklı kavrama genişliklerine uygundur.
- Kolaylık: Yer kaplamaz, kolayca monte edilebilir, depolanabilir ve taşınabilir.
- Güvenli ve Profesyonel: Yüksek ağırlık taşıma kapasitesi ve sağlam yapısıyla profesyonel kullanıma uygundur.
Ürünümüz veya Smart Rack uyumluluğu hakkında bilgi almak için buradayız:
WhatsApp Destek Hattı: +90 535 251 25 01


















Oyuncaltotte (doğrulanmış kullanıcı) –
Ürünün kalitesi tartışılmaz. Squat rack ile direk uyumlu, sorunsuz çıkarıp takıp istediğim yüksekliğe ayarlayabiliyorum. Evde spor yapacak olanlar için olmazsa olmaz bir ürün.